Search

Leave a Message

Thank you for your message. We will be in touch with you shortly.

Explore Our Properties

Property Description

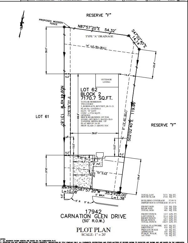
New Construction - Ready Now! Built by Taylor Morrison, America's Most Trusted Homebuilder. Welcome to The Bordeaux at 17942 Carnation Glen Drive in Trillium offers dynamic living spaces and thoughtful design throughout. A dramatic two-story great room creates the perfect setting for hosting or relaxing, while the open-concept kitchen--complete with walk-in pantry and easy access to the garage--adds everyday ease to your routine. Tucked quietly at the back of the first floor, the private owner's retreat includes a spacious bath with double vanities, oversized shower, and generous walk-in closet. Upstairs, a flexible game room and media space bring extra room to unwind. And with a standard 3-car garage, there's space for hobbies, storage, or both. Additional Highlights Include: Media Room and Bedroom 5 with Bath 4 Guest Bedroom. Photos are for Representative Purposes Only. MLS#26698288

Overview

Property Status
For Sale
Lot Size
7,170 Sq.Ft.
MLS ID
26698288
Property Type
Residential
Year Built
2025

Features & Amenities

Architecture Styles
Traditional
Stories
2
Garage Spaces
2.0
Water Source
Public
Roof
Composition
Lot Features
Corner Lot, Other, Subdivided, 0 Up To 1/4 Acre
Parking
Attached, Garage Door Opener
Heat Type
Natural Gas
Air Conditioning
Ceiling Fan(s), Electric
Laundry Room
Electric Dryer Hookup, Gas Dryer Hookup, Washer Hookup
Appliances
Water Heater, Disposal, Electric Oven, Oven, Microwave, Gas Cooktop, Dishwasher
Other Interior Features
High Ceilings, Prewired for Alarm System, 2 Bedrooms Down, En-Suite Bath, Primary Bed - 1st Floor, Walk-In Closet(s)
Substructure
Slab
Other Exterior Features
Sprinkler System
Elementary School
Patterson Elementary School (Fort Bend)
Middle School
Crockett Middle School (Fort Bend)
High School
Travis High School (Fort Bend)
School District
19 - Fort Bend
Sales Price
$599,999
HOA
$950/yr

Downloads

17942 Carnation Glen Drive

Schedule a Tour

We would love to help you see this beautiful home! As a full-service brokerage, we can help you tour. Please submit an offer, and answer questions about the buying process.

Enter a valid email

Thank you

for your interest in 17942 Carnation Glen Drive, Richmond, TX 77407

back to page
17942 Carnation Glen Drive
Navigate
17942 Carnation Glen Drive
explore in 3d

Mortgage Calculator

Estimate your monthly mortgage payment, including the principal and interest, property taxes, and HOA. Adjust the values to generate a more accurate rate.
$0,000 Your Payment 20 15 65
$0,000 Your Payment

I'm Interested In

17942 Carnation Glen Drive

or
  • CallJared Turner

    License #0626887

    (832) 421-0077
  • Follow Us On Instagram